Eine große Fläche in einer zentralen Innenstadtlage können Sie zu einem günstigen Preis haben.
Zum 01.02.2026 vermieten wird 80 m² des Gesamtbüros zur exklusiven Nutzung.
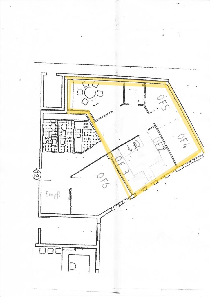
Der vermietete Abschnitt ist auf folgendem Grundriss markiert

Die restliche Flächen, inkl. Toiletten und Küche, verbleiben in Gemeinschaft mit dem Eigentümer. Kunden und Besucher erhalten trotzdem eine großzügigen Raumeindruck.
Videos unter Virtueller Rundgang.
Der Mietzins gestaltet sich wie folgt:
Mietzins: 2000 €
Nebenkosten: 450 €
Bruttomiete: 2500 + 19 % Mwst. (475) = 2975 €
Die Lage an der Münchner Fußgängerzone ist ideal und verkaufsfördernd.
Bei Interesse rufen Sie mich bitte unter oder 0175/6682625 (bitte abends oder per WhatsApp) an und vereinbaren Sie einen Besichtigungstermin.
E-Mail: patriziavigiani@gmail.com
Hier weitere Bilder und Grundriss.